6175 S Los Lagos BayFort Mohave, AZ 86426




Mortgage Calculator
Monthly Payment (Est.)
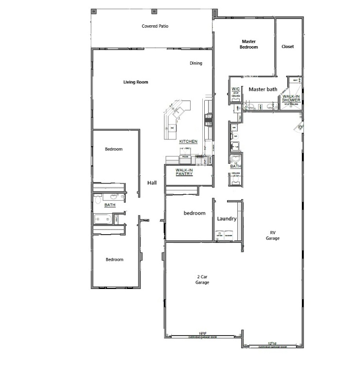
$3,549Personalize your dream waterfront home in the exclusive gated community of Los Lagos in Fort Mohave! This TO-BE-BUILT home offers a spacious and thoughtfully designed floor plan featuring 4 bedrooms, 3 bathrooms, 2,495 square feet of living space and 60ft deep RV garage which is all situated on a cul-de-sac lot! Enjoy open-concept living with a large great room, a modern kitchen with an island and walk-in pantry, and a generous dining area that opens to a covered patio which feels perfect for entertaining or relaxing while enjoying lake views! The private master suite is a true retreat, complete with a large walk-in closet, dual vanities, a separate water closet, and a luxurious walk-in shower. Additional highlights include three guest bedrooms with a shared full bath, a dedicated laundry room, and an expansive 2-car garage plus a 60-foot deep RV garage which is ideal to hold all your desert and river toys! Located in a scenic community surrounded by three man-made lakes, residents enjoy resort-style amenities including a heated pool and spa, tennis and pickleball courts, a clubhouse, a fitness center, and lake access for kayaking and paddle boating. With nearby golf, shopping, dining, and the Colorado River just minutes away, this is your chance to build a home in one of Fort Mohave s most desirable neighborhoods!
| 6 months ago | Listing first seen on site | |
| 6 months ago | Listing updated with changes from the MLS® |
Listing information is provided by Participants of the Western Arizona REALTOR Data Exchange. IDX information is provided exclusively for personal, non-commercial use, and may not be used for any purpose other than to identify prospective properties consumers may be interested in purchasing. Information is deemed reliable but not guaranteed. Copyright 2025, Western Arizona REALTOR Data Exchange.
Data last updated at: 2025-11-22 12:58 AM UTC

Did you know? You can invite friends and family to your search. They can join your search, rate and discuss listings with you.