8248 N Teddy Roosevelt RoadGolden Valley, AZ 86413




Mortgage Calculator
Monthly Payment (Est.)
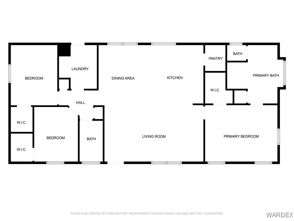
$1,368Peaceful Desert Retreat with Panoramic Mountain Views! 3BR/2BA on 4.02 Acres welcome to your private oasis! This spacious 1,624 sq. ft., 3-bedroom, 2-bath manufactured home is perfectly situated on a 4.03-acre corner lot, directly across from BLM land, offering unobstructed panoramic mountain views and the serenity of open space. Inside, you'll love the open-concept, split floor plan with 9-foot ceilings and laminate flooring throughout. The bright and airy kitchen is a cook's dream featuring elegant cabinetry with lighted uppers, Corian countertops, a large kitchen island with breakfast bar, a farm sink and a large pantry. Enjoy casual meals in the dining area while soaking in the natural light and stunning views from the many windows throughout the home. The spacious living room flows seamlessly from the kitchen, creating a perfect space for entertaining or relaxing. The primary suite offers a large walk-in closet, dual sinks, a soaking tub, and a separate shower for added comfort and convenience. Two additional guest bedrooms and a full guest bath offer plenty of room for family or visitors. Other features include: * Ground-set foundation * Underground utilities with 200-amp service * Fully fenced property with two separate gated entrances * Laundry room with built-in cabinets and counter space * Additional appliances included: washer, dryer, refrigerator, and freezer * Water haul system with two 2,500-gallon storage tanks * Detached 2-car carport * Ample space to add a garage, workshop, or RV parking If you're seeking peace, privacy, and breathtaking views, this is the place to call home. Don't miss this rare opportunity to own land with unmatched tranquility and room to grow. Come and explore our beautiful Arizona desert, beautiful sunrises, sunsets and starry night skies. Don't wait call a Realtor and schedule your personal showing today!
| 2 months ago | Listing first seen on site | |
| 2 months ago | Listing updated with changes from the MLS® |
Listing information is provided by Participants of the Western Arizona REALTOR Data Exchange. IDX information is provided exclusively for personal, non-commercial use, and may not be used for any purpose other than to identify prospective properties consumers may be interested in purchasing. Information is deemed reliable but not guaranteed. Copyright 2026, Western Arizona REALTOR Data Exchange.
Data last updated at: 2026-03-02 12:27 AM UTC

Did you know? You can invite friends and family to your search. They can join your search, rate and discuss listings with you.